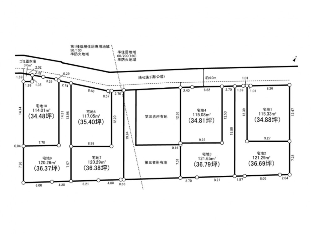
土地 相模原市南区上鶴間2丁目宅地9
所在地
相模原市南区上鶴間2丁目宅地9
3,030万円
36.37坪
月々の
支払例
支払例
万円
年
%
円
※横浜銀行/借入金3,030万円、返済期間35年、金利0.945%変動金利)の場合
※審査により金利は変わる可能性があります。
物件概要
- 交通
-
小田急江ノ島線 東林間駅 まで 徒歩15分
- 接道状況
- 土地面積
- 120.26㎡ (36.37坪)
- 建ぺい率
- 50%
- 容積率
- 100%
- 土地権利
- セットバック
- 無し
- 小学校区
- 上鶴間
- 中学校区
- 上鶴間
- 私道負担
- 建築条件
- あり
- 地目
- 宅地
- 現況
- 更地
- 引渡時期
- 相談
- 上水道
- 公共
- 下水道
- 公共
- ガス
- 都市ガス
- 都市計画
- 市街化区域
- 用途地域
- 1種低層
- 設備・条件
- 備考
- 取引態様
- 仲介
建築条件付きの土地につきましては、土地売買契約締結後3カ月以内に当社の指定する建設業者と請負契約が成立しない場合には土地売買契約は解除され、受領した金額は全額無利息でお返しします。

